BÁO GIÁ DỊCH VỤ THIẾT KẾ XÂY DỰNG VÀ NỘI THẤT
1.Lợi Thế Của Dịch Vụ Thiết Kế Xây Dựng & Nội Thất
- Tối ưu ngân sách: Quản lý chi phí hiệu quả, hạn chế phát sinh.
- Ứng dụng công nghệ: Thiết kế 3D, VR, quản lý tiến độ online.
- Đảm bảo tiến độ: Làm việc chuyên nghiệp, bàn giao đúng hẹn.
- Chăm sóc khách hàng tận tâm: Hỗ trợ tư vấn, bảo trì, hậu mãi tốt.
- Đón đầu xu hướng: Luôn cập nhật phong cách thiết kế hiện đại, sáng tạo.
- Chất lượng & bền vững: Vật liệu cao cấp, thi công chắc chắn, bảo hành dài hạn.
- Cá nhân hóa thiết kế: Đáp ứng sở thích, phong cách, nhu cầu riêng của khách hàng.
- Trọn gói tiện lợi: Thiết kế – Xây dựng – Nội thất giúp đồng bộ, tiết kiệm thời gian & chi phí.
2.Bảng báo giá chi tiết dịch vụ
BẢNG BÁO GIÁ DỊCH VỤ THIẾT KẾ XÂY DỰNG


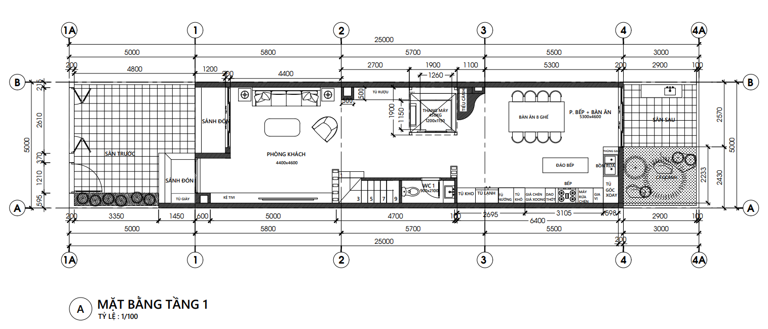
Sơ đồ mặt bằng

Phối cảnh 3D nhà phố hiện đại
BẢNG BÁO GIÁ DỊCH VỤ THIẾT KẾ NỘI THẤT


Phối cảnh thiết kế nội thất phong khách

Phối cảnh thiết kế nội thất phong khách
Ghi chú:
– Giá trên chưa bao gồm VAT.
– Thời gian hoàn thành dự án tuỳ thuộc vào diện tích và yêu cầu thay đổi bổ sung từ Quý khách hàng nhưng không quá 2 tháng.
– Các thay đổi yêu cầu sau khi chốt thiết kế sẽ tính phí bổ sung.
3.Miễn phí 100% khi Quý khách hàng chọn Phước Nhật Long là đơn vị thi công dự án
Khi khách hàng lựa chọn Phước Nhật Long là đơn vị trực tiếp thi công dự án sẽ được miễn phí 100% chi phí cho dịch vụ Thiết kế xây dựng và Thiết kế Nội thất.
Chúng tôi rất mong được hợp tác với Quý khách hàng trong dự án này.
Mọi yêu cầu, thắc mắc xin vui lòng liên hệ với chúng tôi qua:
Hotline 0911091133 – 0917999479.
Website: phuocnhatlong.com
Shophouse: Mặt tiền Nguyễn Chí Thanh, căn ML31 dự án Ecocity, Tp. Buôn Ma Thuột, tỉnh Đắk Lắk.
1.Lợi Thế Của Dịch Vụ Thiết Kế Xây Dựng & Nội Thất Tối ưu ngân sách: Quản lý chi phí hiệu quả, hạn chế phát sinh. Ứng dụng công nghệ: Thiết kế 3D, VR, quản lý tiến độ online. Đảm bảo tiến độ: Làm việc chuyên nghiệp, bàn giao đúng hẹn. Chăm sóc khách hàng…




